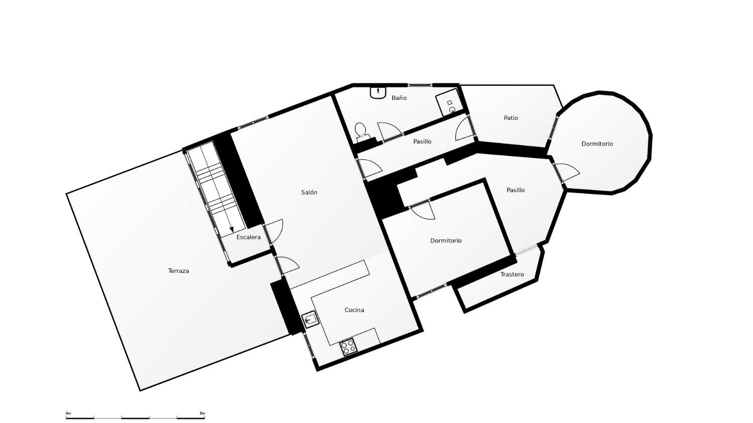
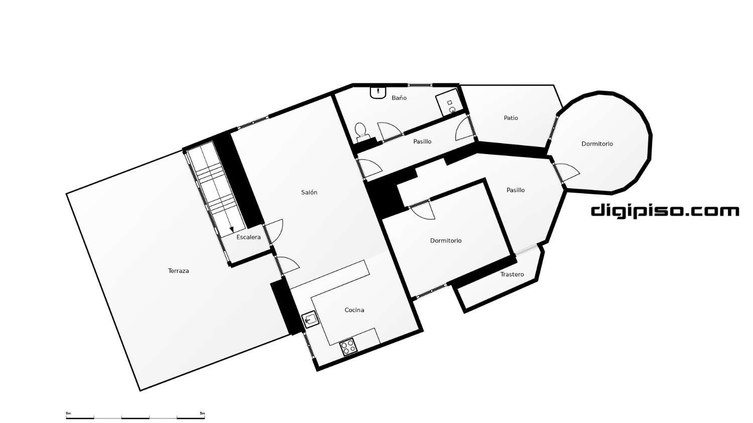
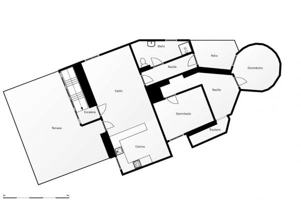
屋 出售 在 Terrabrava - Tordera Parc, 226.000 € (Ref. DH-REAR-03224)
产品特点
通用
表面
状态
表面
状态
设备
服务
服务
价格
226.000 €
能源证书
|
CALIFICACIÓN ENERGÉTICA
|
Consumo energía kW h / m2 año |
Emisiones CO2 kg CO2 / m2 año |
|---|---|---|
| A | ||
| B | ||
| C | ||
| D | ||
| E | ||
| F | ||
| G | 0 | 0 |



































